CONTACT
AGENCE IMMOBILIERE
VERBIER
English
|
Français
Home
Buy a property
Rentals
Sell a property
Information
Contact us
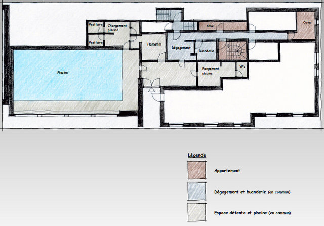
Tzoumettaz B114 ¦ Layout
Tzoumettaz B114
Description
Layout
Location
Return to the search page